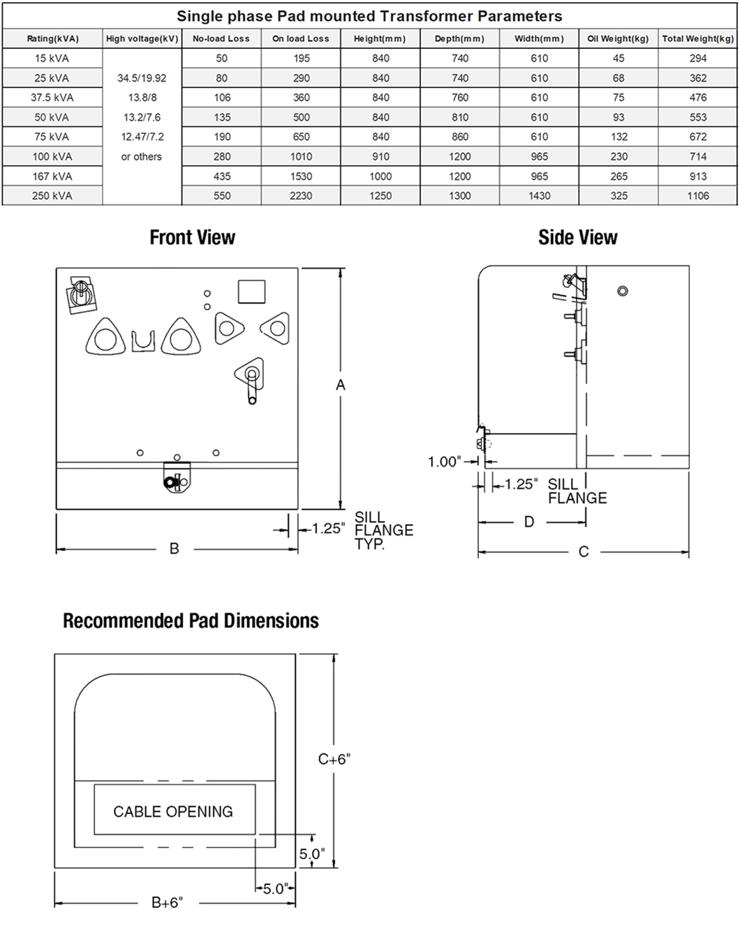
Single Phase 34.5kv Pad Mounted Transformer 167kVA 250kVA Pad-Mounted Transformer
- Details
Single Phase Pad Mounted Transformer General:
• General: Giantway manufactures a complete line of single phase residential pad mounted distribution transformers in its Giantway Power™ series product line. They are available in standard ratings and configurations or can be customized to meet specific needs.
• Single-phase transformers are available as ANSI I & II transformers (shown above in order). All of these distribution transformers are oil-insulated, selfcooled, available in loop or radial feed, and are dead-front.
• All of these transformers meet or exceed ANSI®, IEEE® and NEMA® standards.
• The ANSI® and IEEE® Type-1frontplate arrangement allows vertical feed to the primary and secondary bushings. It is ideal for single-phase industrial and residential applications where a wide range of kVAs or heavy cabling is required.
• Giantway offers Sourceway Power™ series poly-pads that are usable with most transformers conforming to ANSI® C57.12.25-1990 standard (Type-1 or Type-2).
This polymer pad serves as a shipping pallet as well as an installation pad.
Single Phase Pad Mounts Transformer Specifications:
